PROJECT SUMMARY:
As part of the refurbishment of the Auckland Art Gallery three water features where constructed at various locations. H2O were contracted by Hawkins Construction to provide the detailed design, installation and commissioning of the features.
CLIENT: Hawkins Construction
PROJECT DETAILS:
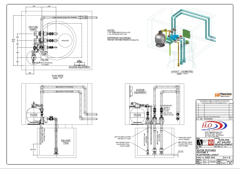
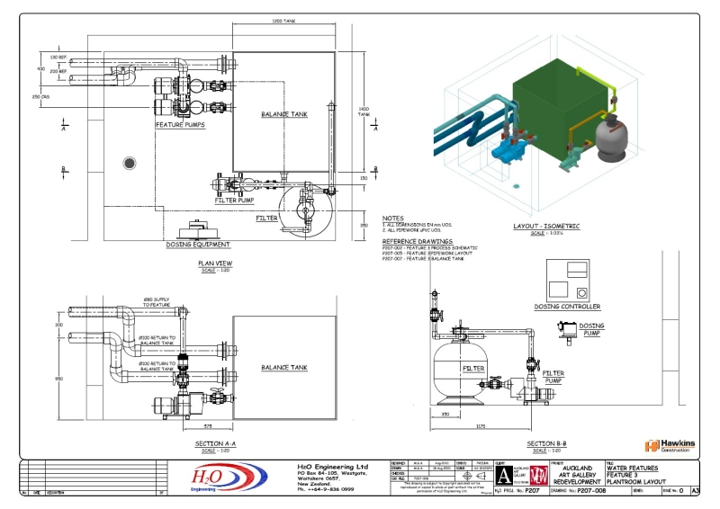
The design and construction of the water features presented a challenge in that the main structure of the facility already existed or space for plantrooms was already allocated requiring lateral thinking around the use of plantroom space, location of reticulation pipework and the construction of surge tanks. Each of the Water Feature systems is independent and typically consists of the following:
Feature pump(s) with integral inlet strainer(s)
Filtration system with Sand Filter and Filter Pump.
Automated water chlorination and pH control
Automatic mains water top up.
Floor sump with submersible pump for flood protection.
The Water Features where completed to the allocated budgets and in the required timeframes during the building construction period.
We continue to service and maintain this feature today.



